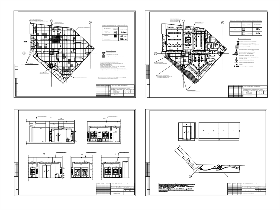
магазин в ТРЦ Вегас
Разработка дизайна интерьера этого магазина была не простотой прежде всего из-за его формы. Помещение имеет 5 углов. В дизайне интерьера квартиры или дома сложная форма помещения часто большой плюс, так как позволяет создать необычное зонирование квартиры и применить крутые дизайн-приемы. Однако при разработке планировки магазина нужно было учесть движение покупательского потока с точки зрения мерчендайзинга, а такое сложное и не слишком большое по пощади помещение (чуть более 100 кв. м) явно осложняло этот процесс. Благодаря большому опыту открытия магазинов сети и консультации со специалистами в рознице удалось найти оптимальное решение. Магазин получился привлекательным с точки зрения архитектуры и законам мерчендайзинга. Поэтому, этот магазин в ТРЦ Вегас открытый более 10 лет назад продолжает радовать покупателей в неизменном виде, за все эти годы понадобился лишь небольшой косметический ремонт.



